
И велосипеды, и бегуны на роликах дисциплинированно останавливались и ожидали прохода пешеходов, а если на светофоре горел запрещающий сигнал, то все дисциплинированно ждали …
Тут, в «трилистнике» жили многие, переселившиеся из первых жилых корпусов – семьи разрастались …
Семья Свиридовых состояла из шести человек: сам Свиридов, его жена Тоня Свиридова, его сын Григорий Свиридов, жена сына Ульяна Свиридова, и внуки – Верочка и Коленька Свиридовы.
Все семейство разместилось в просторной квартире. А кабинет Свиридова расположился вне квартиры – для него использовали часть помещения охраны в квартире напротив.
Свиридов долго упирался, считая недопустимым увеличение жилой площади, но подчинился общему напору – не внутреннему, семейному, а внешнему! – когда стало понятно, что на одном внуке дети не остановятся.
Бывший кабинет Свиридова оборудовали под библиотеку, за стеной которой разместилась небольшая домашняя студия Гриши – но зато он получил просторную студию на даче, и там его студия занимала весь верхний этаж под стеклянной крышей.
Спальня родителей – Свиридовых старших – разместилась прямо у входа в квартиру, слева. Затем шла комната молодых – Гриши и Ули, а потом детская. Но дети еще были малы и Уля не отселяла их в детскую совсем – спали дети в одной комнате вместе с родителями, но днем с удовольствием проводили время в «своей» комнате.
Напротив, через широкий коридор, располагалась просторная столовая, отделенная от кухни стеклянной раздвижной перегородкой – это было любимое место всей семьи, когда они собирались все вместе.
☺ ☺

Квартира Свиридовых
Тогда Уля с помощью Гриши переправляла приготовленное ею на стол, в чем часто помогал сам Свиридов, а мама-Тоня помогала накрывать на стол.
У младших за столом уже были их законные места – они устраивались на высоких стульчиках напротив старших, а с боков их опекали родители. Но Верочка, и даже Коленька вели себя за столом вполне самостоятельно и даже не шалили.
Последнее было несколько странно – малыши, двое, с достаточной свободой самовыражения, но нескольких негромких замечаний Свиридова оказалось достаточно, и дети баловаться перестали.
Пусть совсем не часто удавалось собраться за столом всей семьей, но зато каждый раз это воспринималось как праздник. Праздничную атмосферу создавал Свиридов, создавала Тоня, и их примеру следовали молодые.
Никаких скучных разговоров, никаких мрачных лиц, никаких пререканий и выяснения отношений – только улыбки и доброта.
Потом, когда внуков отправляли спать, взрослые перемещались на диван у стены, куда к «взрослым» втирались «молодые», и начинался задушевный разговор на любые самые сокровенные темы, обсуждались самые важные вопросы, слушали невероятные по содержанию рассказы о самых интересных событиях …
Очень редко Свиридов брал гитару, но тогда вечер становился воистину волшебным.
Не заслушаться Свиридова было невозможно, да и песни его были настолько неожиданными – как и языки! – что слушатели просто балдели от восторга …
Но бывали случаи, когда дверь в спальню Свиридовых оказывалась закрытой, и из-за нее чуть слышно доносились звуки гитары и пение.
Тогда молодые ходили на цыпочках, а Уля завидовала маме-Тоне, потому что Гриша играть на гитаре и петь не умел …
В семье работали все.
Самые младшие работали в детском садике, куда рано утром они направлялись под предводительством мамы-Ули или бабы-Тони. Чаще всего они выходили вместе с мамой, здоровались с дежурными в подъезде, а потом со всеми встречными, и держась за руки спокойно – или вприпрыжку, смотря по погоде! – переходили в ведение тети Любы.
А там их ждали знакомые, игрушки, спортивные снаряды.
Это стараниями Дениса Дубинина в самых малышовых группах появились несложные спортивные снаряды, на которых детишки с упоением кувыркались.
Дядя Денис заходил в группы каждый день и много времени проводил с самым молодым поколением.
Уходить из садика не хотелось, но зато бывали случаи, когда за Верочкой и Коленькой заходил папа или дедушка. Это был праздник!
Совсем не потому, что можно было пойти погулять, и даже в лес. И не потому, что можно было по очереди поехать на плечах папы или деда.
Просто с ними было весело, хорошо.
С мамой и бабушкой тоже было хорошо, но с папой и дедом это происходило намного реже …
А уж если в выходной день, когда в садике тоже был выходной, собиралась вся семья и можно было отправиться в лес – а если на лыжах?!
Или на просторной машине с папой за рулем отправиться на дачу, и там остаться на все лето? И вместе с Максиком?
И ходить в гости на соседние участки к друзьям?
И есть ягоды прямо с куста?
И купаться каждый день и лежать на горячем песке?
А потом искать грибы, спрятавшиеся под листьями в сумрачном лесу?
И засыпать в гамаке на улице под пение птичек?
И просыпаться утром от солнечного луча и лапки Максика?
Внуки росли, дед с бабкой радовались, отец с матерью наслаждались.
Гриша рисовал растущих детей и их сверстников с соседних участков, а подросшие Верочка и Коленька с грустью встречали осень и переселение в город.
Конечно, там было тоже неплохо …
К частым отлучкам Свиридова в семье привыкли.
Иногда он отсутствовал день-другой, иногда несколько дней, а бывало и подольше.
Чаще всего Тоня знала, с чем связано отсутствие мужа, но даже когда не знала точно, где он в данный момент, она всегда старалась мысленно заботиться о нем – ей казалось, что так правильно.
А Свиридов потом говорил ей, что он чувствовал ее участие и заботу, и это помогало ему.
А дел у Свиридова хватало. Иногда даже слишком, и после возвращения из сложной поездки ему приходилось восстанавливать силы. Особенно если это было связано с перемещением во времени и далеко от дома, то такие путешествия давались особенно трудно и требовали наибольших затрат энергии (и чего там еще?).
Именно после таких путешествий по настоянию Умарова ему приходилось хоть на пару дней ложится в клинику …
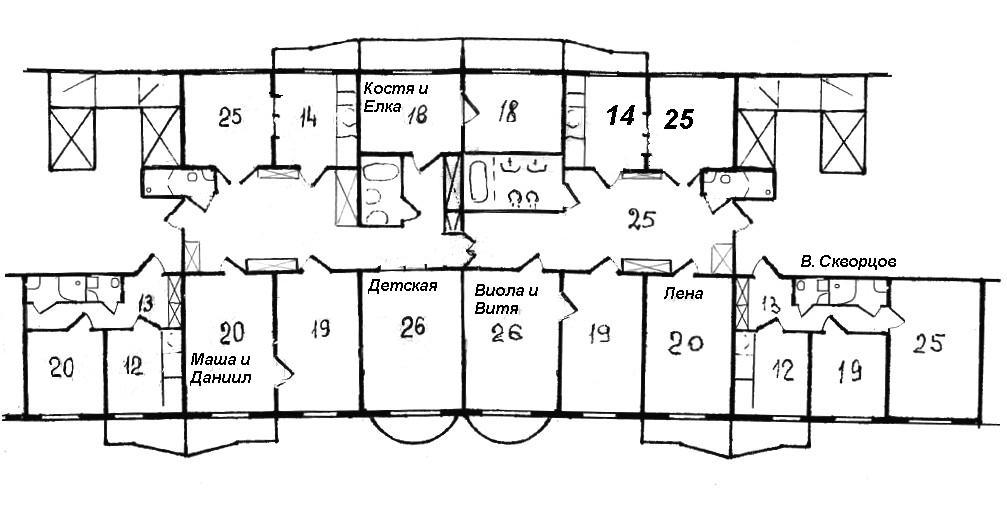
Квартира Скворцовых порой напоминали общежитие.
Нет, не очередями в туалет и в ванную, не склоками около примусов, нет!
Многонаселенностью!
Когда все члены этой большой семьи собирались вместе – все Скворцовы, Ерцкие и Дубинины – то становилось видно, что их много, и Виктор радовался.
Это была его идея – соединить всех в одной квартире, пусть гигантской, но одной.
И это ему удалось.
Стараниями строителей две квартиры, выходящие на лестничные клетки двух соседних подъездов, было объединены в одну гигантскую квартиру, а сам Виктор, как и раньше, остался в соседней двухкомнатной.
Соединенные квартиры в основном сохранили свою привычную планировку за исключением того, что квартира Дубининых (Маши Скворцовой и Даниила Дубинина) сохранила некоторую обособленность, которая примиряла Даниила с проживанием в одной семье.
☺ ☺

Квартира Скворцовых-Дубининых.
Сквозной коридор от подъезда до подъезда позволял подрастающему поколению в перспективе устраивать гонки на велосипедах или самокатах, оставленная соединительная дверь позволяла при желании отгородиться, а наличие второй кухни и второй гостиной завершала эту обособленность.
Справедливости ради следует заметить, что это обстоятельство еще ни разу не было реализовано, и даже такого желания не возникало – дверь ни разу не закрывали.
Но зато как было удобно – при необходимости можно было уединиться на «своей» кухне или в «своей» гостиной.
Около комнат молодых – между прочим около комнаты Виолетты тоже – рядом были детские комнаты. Такие комнаты были и у Кости с Елкой, и у Данила с Машей.
Но была еще общая детская комната – в светлой комнате с распашными застекленными дверьми – надо же приглядывать за детьми? – сразу установили шведскую стенку и качели. Оборудованием этой комнаты единолично ведал Даниил, и ему никто даже не подумал противоречить.
А когда у Лены появилась еще одна дочка, то в стене была проделана дверь и образовалась общая детская комната для детей Лены и Виолы, и обе восприняли это как должное.
Таким образом к описываемому моменту в квартире проживали: Лена с маленькой Витиной дочкой Анечкой, Виолетта с Витиными детьми Витенькой и Риточкой, Костя Скворцов с женой Еленой (Елкой) и с их сыном Сашей, внуком Виктора, Даниил Дубинин с Машей, в девичестве Скворцовой, с их сыном Аркашей, вторым внуком Виктора.
Сам Виктор Скворцов не изменил себе и остался в отдельной двухкомнатной квартире рядом, но это не мешало ему практически постоянно находится в их общей квартире.
Уединялся Виктор для работы, и тогда к нему без предупреждения по телефону никто не входил. А еще эту обособленную территорию облюбовали мужики – Анатолий Свиридов, Костя Докукин вместе с Виктором Скворцовым – для редких междусобойчиков, откуда их потом разбирали жены …
Таким образом в общей квартире, где проживали женщины Виктора, его дети и внуки, общая численность населения составляла десять человек – если не учитывать его постоянного присутствия.
Семейство Скворцова вызывало неутолимый интерес большинства населения – как это так мужик живет с двумя женами. Не с двумя женщинами – с женой и с любовницей, а с двумя равноправными женами!
К этому постепенно привыкли – ровные отношения между Леной и Виолеттой, ровные семейные отношения с детьми, несколько сложнее – ровные родительские отношения с только что родившимися малышами – чьими?
Но интерес оставался, хотя и не выражался в открытую.
И с Леной, и с Виолеттой все общались вполне добрососедски, оставляя пересуды для лавочки перед подъездом.
А дома Лена с Виолеттой вполне примирились и делили Виктора по-братски, то есть по-женски и поровну, а «график посещений» устанавливал сам Виктор.
Младших детей – Риточку и Анечку – женщины не отличали и заботились о них одинаково, чему иногда удивлялись сами.
Тем более детей не отличал Виктор, уделяя внимание им без разбора. И вообще Виктор с такой нежностью играл с девочками, не забывая внуков – Сашеньку и Аркашу, что Лена начинала ревновать его. А Виолетта утешала Лену, подчеркивая любовь Виктора к детям, и не только маленьким. Заботы отца хватало не только Витеньке, как самому взрослому из маленьких, но и старшим – Косте, Елке и Маше.
Немного отличались отношения Виктора с Даниилом – тот был несколько старше Маши, Кости и Елки, и был очень чувствителен к диктату.
Но Виктор сумел наладить отношения с Даниилом, и тот почти примирился с семейной дисциплиной в семейство Скворцовых. Правила этой дисциплины оказались так просты, что не стали преградой к его ассимиляции, и с помощью Маши Даниил стал почти полноправным членом этой большой семьи.
Утро в квартире начиналось рано – вставали женщины и готовили еду своим мужчинам и своим детям. Или наоборот – сперва детям, а потом мужчинам?
К завтраку приходил Виктор. Даже тогда, когда он ночевал у одной из своих любимых женщин, он рано утром возвращался в свою квартиру, там приводил себя в порядок, а затем возвращался к столу.
За столом собирался весь наличный состав семьи за исключением тех редких случаев, когда Виктор уезжал в командировку.
У каждого за столом было свое постоянное место, и даже маленькие быстро к этому привыкли.
И еще по выходным на прогулку часто выходили тоже все вместе – старшие, младшие и маленькие. Маленькие ехали в колясках, Витенька шел сам, категорически отказываясь от коляски – в крайнем случае он мог ехать на руках у отца, у Кости или у Дена, а замыкающими шли Виктор и его любимые женщины, держащие его под руки.
К этой компании нередко присоединялась Верочка и Коленька Свиридовы, или Егорка Медяков, или младшие дети «сестренок» Свиридова …
После возвращения из длительной зарубежной спецкомандировки Валентин Викторович Антипов и Маргарита Семеновна Антипова получили тут, в городе недалеко от Москвы, отдельную трехкомнатную квартиру.
Но после того, как Карен Варданян «отбил» Маргариту Семеновну у Валентина Викторовича, и Маргарита переехала к Карену в его двухкомнатную квартиру, квартирный вопрос возник снова.
Валентин Викторович предложил обменяться – он переместится в квартиру Карена, а «молодые» в его квартиру.
Он предложил это совершенно искренне, не обольщаясь возможностью продолжения совместной жизни с Маргаритой, но тогда Свиридов отверг этот вариант, и Карен с Маргаритой получили трехкомнатную квартиру в другой доме – в «трилистнике», который тогда сдавали.
К Валентину Викторовичу, в просторечии «ВВ», вскоре стала приходить Оля Петрова …
А Карен с Маргаритой стали обживать новую квартиру, сожалеть о невозможности иметь собственных детей, но это омрачало их любовь в малой степени.
Это могло показаться странным, но завзятый холостяк Карен, отнюдь не обделенный вниманием женского пола, и давно безрадостно замужняя Маргарита, в совершенстве владеющая искусством обольщения мужчин несмотря на свою далеко не модельную внешность, по-настоящему полюбили друг друга, ощущали необходимость друг друга и насущную потребность заботы друг о друге.
А уж когда в лесной школе появился маленький армянин Аванес, потерявший родителей, когда Свиридов познакомил Марго и Карена с Аванесом, когда Аванес вошел в их семью и стал их любимы Ванечкой, то их жизнь наполнилась таким прекрасным содержанием!
Марго бегала к Тоне за консультациями, беседовала с Улей по проблемам воспитания маленького мальчика, обращалась к Любе Докукиной.
Мальчик быстро привык к приемным родителям, разговаривал с Кареном на армянском языке и учился у Марго русскому языку. Попутно Маргарита училась армянскому языку – Карен считал, что мальчику не следует забывать родной язык, и в этом его поддерживал Свиридов.
И Карен, и Марго стали после работы торопиться домой.
Теперь они не задерживались на работе, они строили дачный домик с просторной комнатой для мальчика, подумывали о приобретении щенка, о чем даже советовались с Сандалом, тащили домой детские книжки и игры.
По совету Свиридова и Грачевой они пока не допускали Аванеса-Ваню к компьютеру и к компьютерным играм, развивая его навыки в чтении, устном счете, правописании.
Жизнь наполнилась, и Марго иногда спрашивала Карена – как мы с тобой могли жить без этого мальчика?
Карен совсем забросил свой гигантский «Паккард» и на дачный участок они ездили на «Гелендвагене», полученном Марго после ее зарубежной командировки.
Ваня в нарушение всех правил сидел у Марго на руках, и с удовольствием смотрел по сторонам. А потом на участке, освоившись с ближайшим окружением на соседних участках, он с упоением носился со знакомыми мальчишками и галантно помогал девочкам.
– Смотри, Марго, он весь в меня! – радовался Карен.
И всем пришлось привыкать, что деловитая и суровая на работе Маргарита Семеновна совершенно преображается при виде маленького мальчика с иссиня черными волосами и смуглым лицом …
А этот мальчик, весело играющий в компании многочисленных Скворцовых или у Свиридовых, услышав голос Маргариты Семеновны «Ванечка!» стремглав бежал к ней …
Калерия Петровна и Марат Сергеевич долго не могли привыкнуть – ни к своей новой квартире, ни к новой мебели, ни к новым врачам, а самое главное к окружающим их людям.
Свиридов бывал здесь часто.
Когда Свиридов привез их сюда, и они вошли в пустую квартиру, и растерянные сели вдвоем на старый чемодан, то у них даже времени на удивление не оставалось.
В квартире сразу появились люди – не любопытные соседи, а крайне деятельные и заинтересованные. Двое мужчин повели Калерию Петровну на какой-то склад, где она выбрала мебель, и буквально через час все это стояло в комнатах – а комнат-то было две, да еще кухня! Расстановкой мебели руководил Марат Сергеевич, очень мягко и нерешительно командовавший крепкими мужчинами – это их через несколько дней новоселы увидели в офицерской форме …
Какая-то женщина, очень внимательная и вежливая, притащила коробки с посудой – ей помогали сразу три подростка.
Эти подростки быстро подружились с Маратом Сергеевичем – оказалось, что их отец автомеханик, и ребята приносили старые книги о моделях машин, о которых многие забыли, но не новоселы.
И Марат Сергеевич, и Калерия Петровна с таким удовольствием перелистывали пожелтевшие страницы описаний автомобилей ГАЗ-АА, ЗИС-5, Москвич, Победа …
Перелистывала страницы, конечно, Калерия Петровна или трое Ивановых, а Марат Сергеевич долго еще не мог привыкнуть к своим новым «рукам» – ему изготовили протезы, и он теперь мог самостоятельно выполнять простейшие операции: держать ложку, вилку, стакан, пульт от телевизора …
Телевизор – первое время их обоих нельзя было оторвать от телевизора, ведь они смогли смотреть телепередачи только тут, переехав в этот удивительный город.
Удивительный потому, что у них в квартире постоянно кто-нибудь был – то удивительная женщина по имени Дарья Федоровна, заходившая с маленькими детьми, а иногда с мужем-полковником, то близнецы Ирина и Полина, сироты, не сидевшие без дела и во всем помогавшие Калерии Петровне по дому, то целая команда мальчиков, удивительно ласковых (и очень необычных, что супруги поняли не сразу), то сам Свиридов, его жена, его сын …
Очень скоро на стене в гостиной появились сперва два портрета хозяев, хотя, во-первых, они не позировали художнику, а во-вторых, там, на портретах они были такие молодые …
Это уже потом появились и другие рисунки …
Марат Сергеевич, и Калерия Петровна теперь часто выходили из дома – в магазин или просто погулять, и радовались …
Они радовались всему – и светлым комнатам, и просторной кухне, и уютному магазину, где все было, но главное они радовались окружающим их людям.
Все здоровались друг с другом, все были готовы помочь, постоянно вокруг их окружали Ирина и Полина, да и другие ребятишки забегали почти каждый день …
Скучать было некогда. Марат Сергеевич старательно вспоминал позабытое из школьной программы – нужно же помогать ребятам и проверять у них уроки, а Калерия Петровна пыталась освоить вязание – когда-то ей показали основы, но многое подзабылось …
Гриша уже бывал в квартире Бганцевых, но в этот раз по приглашению молодых они пришли вдвоем с Улей.
Старый дом в старом уголке Москвы, старый подъезд, облагороженный новой стальной дверью с кодовым замком, старые каменные – не бетонные! – ступени лестницы.
Уля разглядывала квартиру в доме, построенном сотню лет назад.
Старинная входная дверь, двухстворчатая, высотой два с лишним метра.
Просторная прихожая с зеркальными дверцами стенного шкафа, старинный паркет, три двери – шикарная старинная двухстворчатая дверь, замыкающая торец прихожей, скромная – новодел! – дверь налево, раздвижная дверь в коридор направо, явно диссонирующая с обликом квартиры.
Катя пригласила гостей к себе – они прошли через раздвинутую дверь в коридор.
Справа доносились вкусные запахи, а слева в торце коридора светилось громадное окно в витражах.
Уле все было интересно.
Коридор был не особенно широк, справа виднелись створки стенного шкафа, а чуть дальше дверь в комнату Кати.
Дверь находилась в некой нише – оказалось, что эта ниша была толщиной капитальной стены.
Вот где скрывалась причина долголетия дома – кирпичные стены толщиной более полуметра по периметру и такая же промежуточная стена вдоль дома, делящая здание на две части!
Что это было – прихоть хозяина или выдумка безымянного архитектора, но эта стена разграничивала «парадную» часть от «людской» и дала зданию такой запас прочности, что позволило надстроить еще пару этажей.
По уличному фасаду располагались парадные комнаты, а со стороны дворового фасада – комнаты горничных и кухарок.
Вот в этой «людской» части находилась просторная комната Кати, где уже прослеживались следы Олега в виде письменного стола с ноутбуком, книжной полки и картины на стене.
В скромной рамке лица Кати и Олега были настолько выразительны, что без фаты и других признаков можно было утверждать свадебный характер момента.
Это был рисунок Гриши, сделанный на свадьбе (которой не было!) – и как это только ему удалось?
В центре комнаты стоял небольшой круглый стол с вазой и фруктами, но мягкие игрушки и куклы выдавали, что играть ими кончили недавно.
Или не кончили?
Стулья у стола свидетельствовали, что тут были готовы принимать гостей, друзей.
Что и продемонстрировала молодая хозяйка, усаживая гостей.
Уля еще не успела оглядеться, как дверь быстро отворилась.
– Мама, неужели мне придется запирать дверь, чтобы ты научилась стучаться?
Катя сказала это очень мягко.
– С Гришей ты знакома, а это его жена Ульяна. Познакомься, пожалуйста.
– Да, да … Здравствуйте! Здравствуйте, Ульяна! Меня зовут Вера Николаевна!
– Очень приятно, Вера Николаевна. Уля.
После недолгого препирательства все перешли через коридор в парадную гостиную.
Тут скромная дверь из коридора скрывала великолепие хрустальной люстры – благо высота потолка позволяла, старинную мебель, горки с посудой и пару картин на свободных местах стен.
На них Уля обратила внимание – в богатых рамах находились сносные копии Шишкина и Левитана.
– Что, Уленька? – спросил ее Гриша, мельком глянувший на картины.
– Да, что скажите, Григорий? Ведь вы художник!
– Мне это напомнило недавний случай … – не дала мужу ответить Уля.
– Это интересно. Расскажите, прошу вас.
– Мадам Женовьева …
– Мадам?
– Да, мадам Женовьева. Это в Вене, мы там всегда останавливаемся у Дрейзеров, у них на вилле.
– Вы … вы бываете в Вене?..
– Да, мы там бываем. Последний раз я летала с Гришей … с мужем, у него там были дела в издательстве.
– У вас есть контакты с австрийским издательством, Григорий?
– Мама, я же тебе рассказывала! И показывала книгу, которую иллюстрировал Гриша и подарил мне!
– В этот раз мадам Женовьева повела меня в их домашнюю картинную галерею, где я еще не бывала …
– И я тоже!
– И там я увидела …
– А как вы находите наши картины!?
– Неплохие копии, – это вмешался Гриша.
– А у Дрейзеров я увидела копии Вермеера, подлинник Климта, других незнакомых мне художников! Но не это удивило меня больше всего!
– А что же, Ульяна?
– Мне неловко, но это были картины Гриши! Две его картины в настоящих рамах!
– И что же это были за картины? Почему они висели рядом с известными мастерами?
– Это были портреты моей любимой Уленьки!
– Чем же знамениты эти портреты?
– Ну, что вы, Вера Николаевна! Это выдающиеся портреты! Там Уля … такая! Там, в Вене, допечатывали тираж журнала, где был опубликован один из них!
– Правда, Уля? Тот самый, да?
– Да, Катюша. Тот самый … – Уля смутилась.
– И чем же знаменит тот, как вы говорите, портрет Ульяны?
– Мама, да там Уля танцует обнаженная! Да как! Я же слышала, как ей восторгались на выставке!
– Вы выставляетесь, Григорий?
– Бывает.
– И премии есть?
– Да, у Гриши есть премии. И тут, дома, и на международной выставке молодых художников. А вот эти часы – премия с выставки художников студии Грекова. – Олег махнул рукой в сторону Гриши, который хотел остановить его.
– Гриша иллюстрирует книги венского издательства, и книги издаются на двух языках, и рисунки в них разные. Мама, Гриша не только довольно известный художник, он еще и художник гениальный! Он мне показал свои рисунки обнаженной натуры – это что-то!
– Надеюсь, ты не стала ему позировать?
– Не надейтесь, Вера Николаевна! И это изумительно!
– Но как же это … Как вы разрешили ей, Олег?
– Во-первых, я ничего ей не запрещаю. А во-вторых, Гриша может уговорить кого угодно! Я не прав, Катюша?
– Абсолютно!
Появился Бганцев, молча посидел, затем увел мужчин к себе в кабинет.
Из гостиной в его кабинет вели высокие старинные распашные двери, но кабинет был скромным и даже аскетичным. Николай Владимирович предложил по маленькой рюмочке, он был контактен, находил темы, интересные гостям.
Было видно, что у него прекрасные отношения с Олегом.
Это к нему кабинет вела скромная белая дверь из прихожей, а просторный диван в глубине кабинета намекал на возможность ночевки прямо тут, в кабинете.
На этом диване уже несколько раз ночевал Олег.
А Вера Николаевна не упустила возможности похвастаться спальней – туда из гостиной вели другие старинные высоченные распашные двери.
И Уле была продемонстрирована спальня с заложенными окнами в сторону улицы, а из углового окна просматривалась часть перекрестка и улицы с автомобильной пробкой …